小区名称:菱角湖万达广场
装修风格:欧式新古典
装修户型:平层
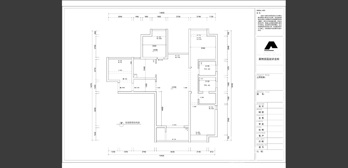
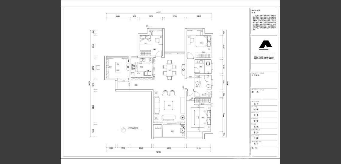
装修面积:160平米
设 计 师:李广明
万达广场
设计概念:做这个设计之前,李姐已经看中了宫廷一号的家具。她有两个孩子,男宝4岁,女儿7岁。这是一个充满了爱和 快乐的家庭。
房子净高2.7米,李姐不希望顶面大面积压低,中央空调装在过道分割客厅餐厅,其它顶部为线条简练的叠级造 型。客厅餐厅的墙面装饰采用三段式的美学法则,用原木边框和天然石材造型。蓝色刺绣花鸟墙纸、窗帘、餐 椅布,空间流淌着一清新的气息,结合香槟色硬包和同色系的条纹墙纸,色彩搭配冷暖调和。地面大理石纹样 地砖,洁净且有质感。两个孩子房间色彩较为跳跃,色彩纯度与明度相对较高。主卧整体上清新淡雅。走进书 房,原木板吊顶,白色书柜,浅绿的墙纸,让人仿佛闻到书香和阳光交织的味道。

