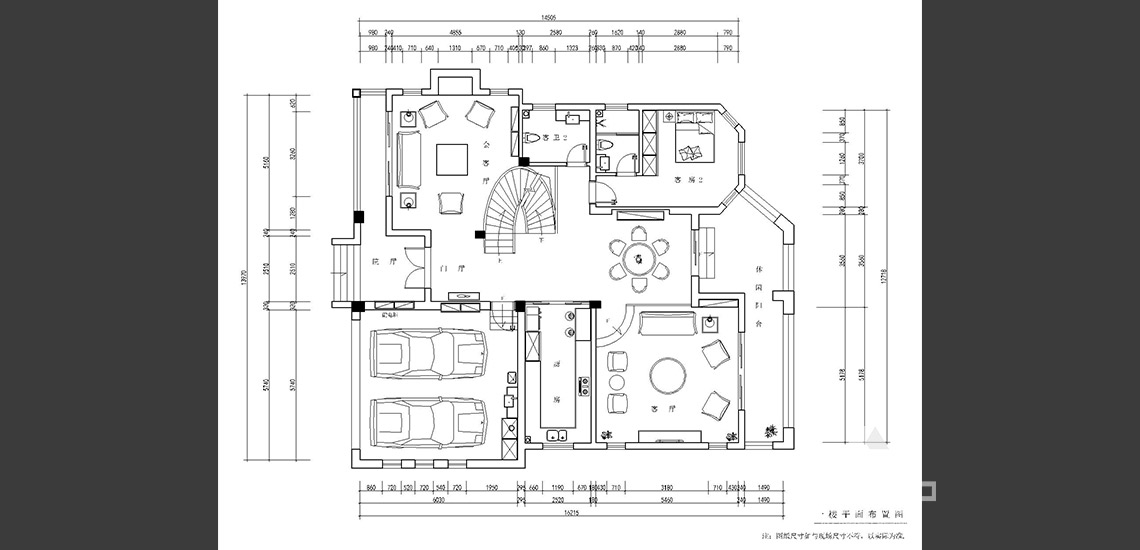
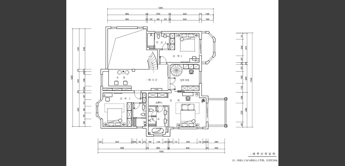
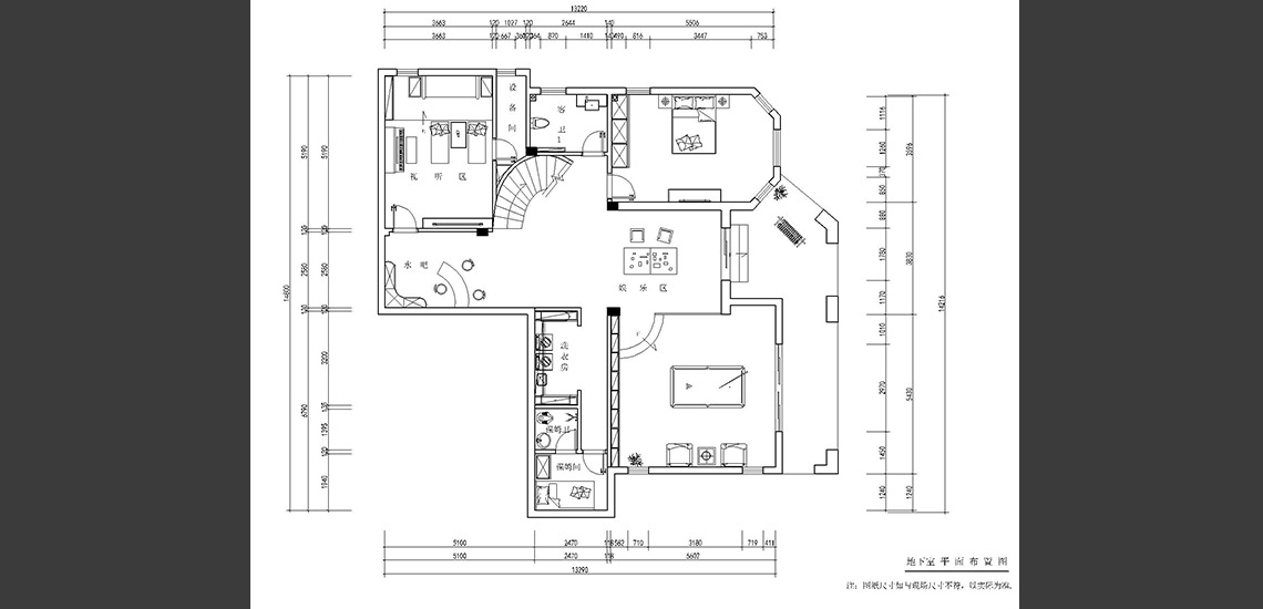
小区名称:保利十二橡树
装修风格:美式
装修户型:别墅
装修面积:500平米
设 计 师:熊伶俐
保利十二橡树
业主需求:业主喜欢舒适休闲的格调,一家三代人居住,需要两间小孩房、视听室、酒水吧、保姆间、洗衣房
设计说明:项目地上两层、地下一层。会客厅起居空间位于一层,二层为卧室和休息空间,在地下室集中了家庭试听娱 乐、台球、红酒吧等更为个性化的空间,首先对空间进行了平面梳理,让轴线更清晰,让平面上各空间的比例 和位置更加均衡。在陈设色调方面采用了暗棕、土黄为主的自然色彩;力争做到柔和、平静、和谐,调和出典 雅舒适的空间氛围。

