小区名称:盛世滨江
装修风格:欧式新古典
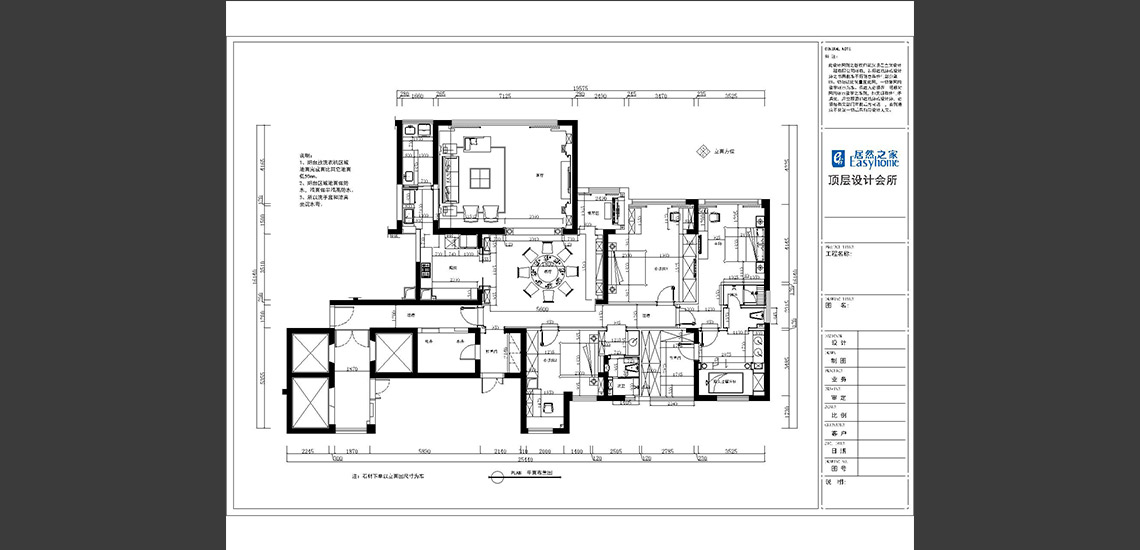
装修户型:平层
装修面积:250平米
设 计 师:熊伶俐
盛世滨江
业主需求:业主喜欢高雅奢华的格调,一家三代人居住,需要两间小孩房,空间格局要大气,喜欢石材质感。
设计说明:本案欧式新古典主义的设计风格其实是经过改良的古典主义风格。欧洲文化丰富的艺术底蕴,开放、创新的设 计思想及其尊贵的姿容,一直以来颇受众人喜爱与追求。从简单到繁杂、从整体到局部,精雕细琢,都给人一 丝不苟的印象。一方面保留了材质、色彩的大致风格,仍然可以很强烈地感受传统的历史痕迹与浑厚的文化底 蕴,同时又摒弃了过于复杂的肌理和装饰,简化了线条。无论是家具还是配饰均以其优雅、唯美的姿态,平和 而富有内涵的气韵,描绘出居室主人高雅、贵族之身份。墙面的石材墙板和实木墙板装饰、水晶吊灯的点缀, 还有爱奥尼的石材柱、石材地面拼花也是此案的点睛之笔。

