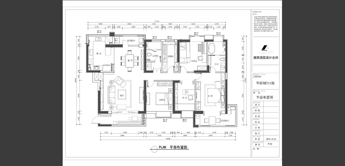
小区名称:华侨城
装修风格:地中海混搭
装修户型:平层
装修面积:198平米
设 计 师:宋阳
华侨城-198㎡-实景照片
设计概念:本案是一个地中海田园和新中式相结合混搭风格。在空间的布局方面,没有做大面积的改动,在细节和功能形 式上结合业主的生活方式做了细微调整。是空间更合理使用。格调方面,定位是前冷色系,想营造地中海田园 的休闲调性。背景色采用了浅暖的米黄色和浅蓝色作为背景色,温馨自然,在主题色方面运用色灰色调和白色 来做为主题色,调和成清新的调性。当在午后在吧台的一侧沏一杯咖啡,伴随着清香,品尝生活带来的舒适愉 快。也许这就是生活。

