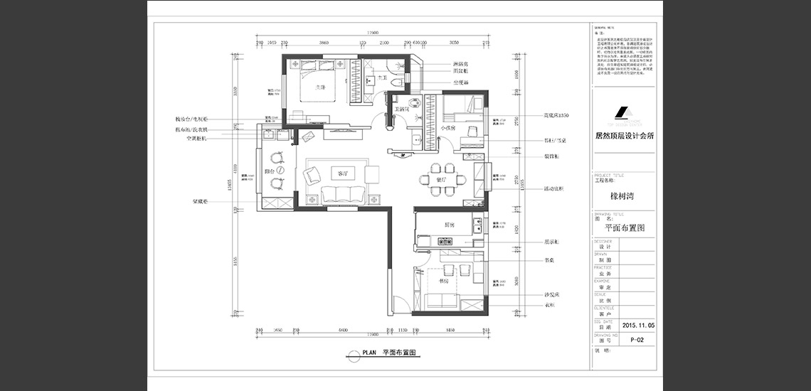
小区名称:橡树湾
装修风格:简约美式
装修户型:平层
装修面积:123平米
设 计 师:宋阳
橡树湾
设计概念:本案的业主是一对即将步入婚姻殿堂的小夫妻,对于家的感受有一定的想法,他们想要一种既温馨又随信的感 觉。所以基于业主这样的生活理念,我将本案的风格定义为简约美式风格。
在空间的布局方面没有做太大的改动,在功能形式上基于业主的需求做了一些细微的调整,使空间能够合理使 用。格调方面采用浅暖色系,营造出一种休闲温馨的感觉,背景采用灰绿与白色相结合,清新且自然。在主题 色方面采用以浅咖色和奶白色为主,柠檬黄作为点缀色来加强整个空间的色彩层次感。

