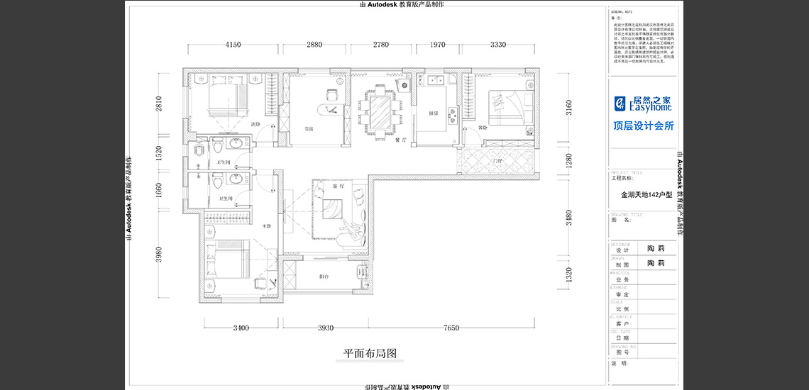
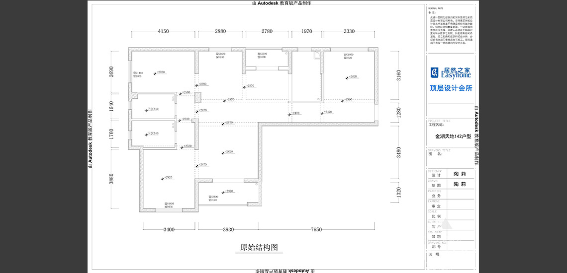
小区名称:金湖天地
装修风格:简欧风格
装修户型:平层
装修面积:142平米
设 计 师:陶莉
金湖天地
业主需求:年轻夫妻的婚房,喜欢简欧风格。希望深浅色彩搭配一下,在跳跃中能带一丝沉稳。具体要求:1.希望空间 大。2.利用空中花园改造客房。3.充分开发商送的面积扩大室内空间。4.解决餐厅面积小的问题。
设计的出发点:1.设计开放式的书房,是书房成为客厅的休闲空间。
2.拆除餐厅的阳台,增大餐厅的使用空间。
3.客卫制作隐形门,避免风水问题。
4.调整卫生间的尺寸,是卧室空间尺寸更合理。
5.调整阳台的面积,是客房的室内空间扩大。

