新闻中心
设计案例
设计力量
金牌工地
主材推荐
环保基材
联系我们
新闻中心
设计案例
设计力量
金牌工地
主材推荐
环保基材
联系我们
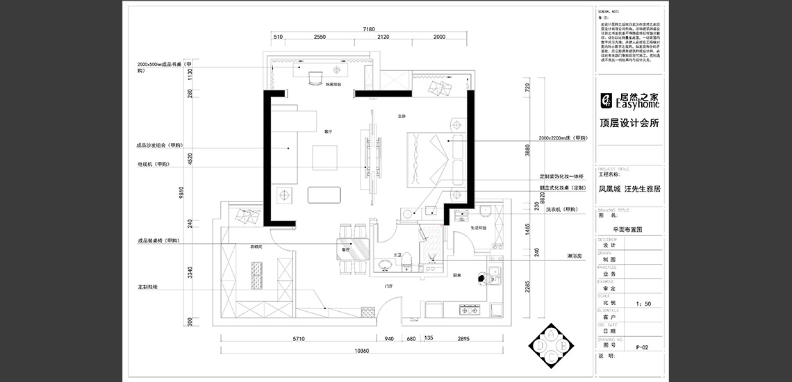
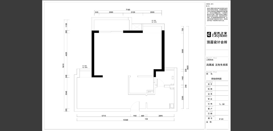
凤凰城
设计团队,武汉顶层全案设计工程有限公司,
设计团队-武汉顶层全案设计工程有限公司
设计团队,武汉顶层全案设计工程有限公司
前往突唯阿tuweia.cn,免费创建你的响应式网站