复地东湖国际



小区名称:复地东湖国际
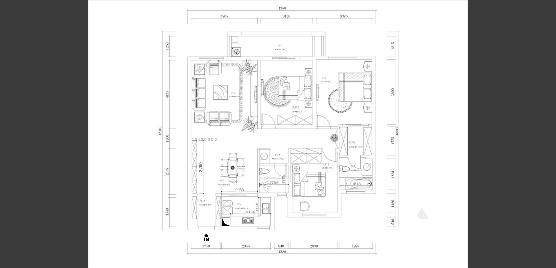
装修风格:现代
装修户型:平层
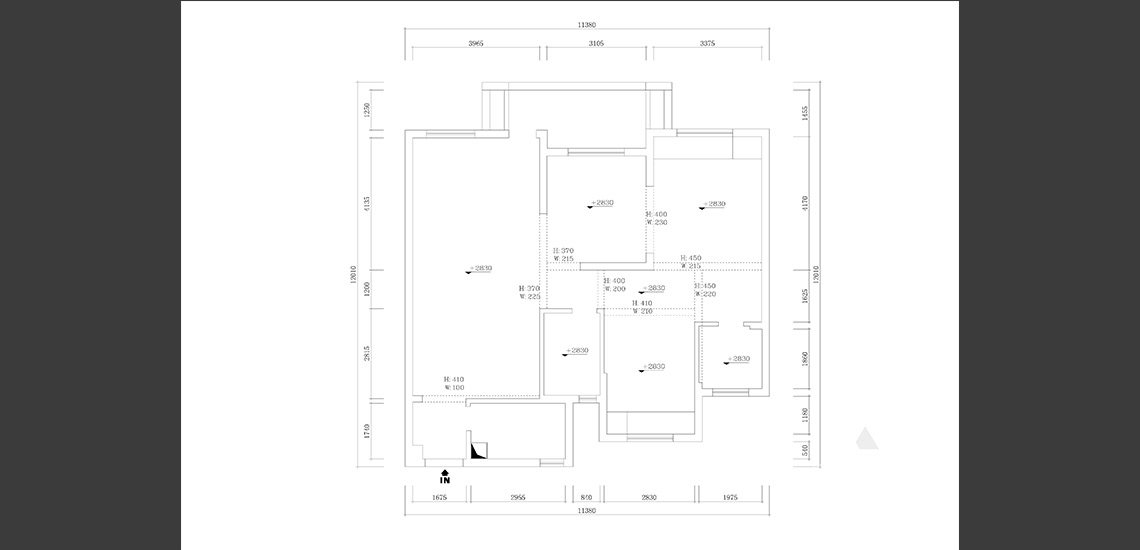
装修面积:126平米
设 计 师:袁丽

设计概念:复地位于武昌中心,毗邻汉街,闹中取静。客户是一对年轻夫妇,喜欢干净简单的居住环境。因此定位设计基       调简单安静,用简单的色彩去定调客厅的明度,空间以开阔为准则。对于小的居室,整合空间,划分动静区,储       物功能美观化都十分重要。所以故此设计。。。



设计团队,武汉顶层全案设计工程有限公司,

设计团队-武汉顶层全案设计工程有限公司

设计团队,武汉顶层全案设计工程有限公司