华侨城



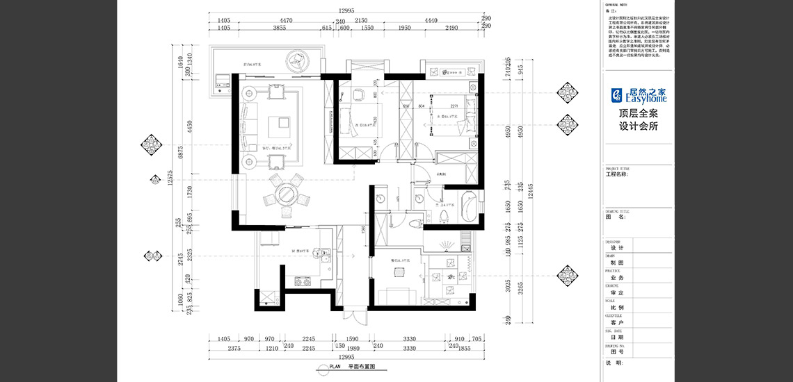
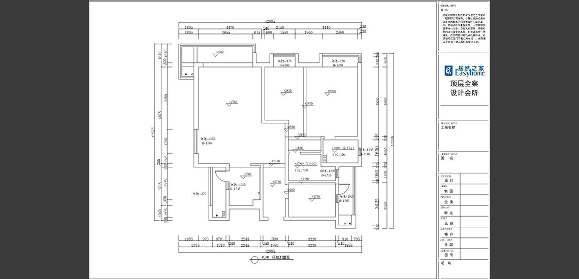
小区名称:华侨城
装修风格:新中式
装修户型:平层
装修面积:156平米
设 计 师:龚皓

设计概念:本案客厅、餐厅比邻,开放式的结构提升了空间的纵深感。空间整体选用清雅的浅色调为主色彩,家具则以深                    色木料为主,在清浅的大背景下,深浅的完美搭配,使空间整体色调显得安逸、和谐。规整的空间布局,横平                    竖直的墙面木制线条,给空间增加了层次感。偌大的客厅阳台落地窗,阳光从落地的大窗子投射进来,幽蓝的                    湖面,别有番诗情画意,给人“'偷得浮生半日闲”的美好感觉,吸引着你窝在沙发上慵懒一番。



设计团队,武汉顶层全案设计工程有限公司,

设计团队-武汉顶层全案设计工程有限公司

设计团队,武汉顶层全案设计工程有限公司