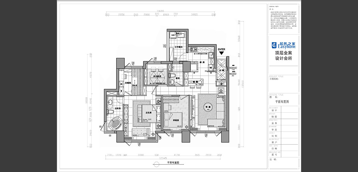
小区名称:葛洲坝花园
装修风格:简欧
装修户型:平层
装修面积:140平米
设 计 师: 余肖
葛洲坝花园-140㎡-平层-【现代简欧】
设计概念:此大宅整体风格定位为简欧风格,我们采用浅色为主基调搭配镜面整齐的大理石作为背景墙,意在为干净,大 气的时尚雅居。在整体空间上,我们利用线条的的简单造型处理,然后结合地面的是整体布局合理的比例分 配,再线条的美感和层次上做了精心的处理。在地面辅以简单的白色地砖,使其干净和简洁的地砖更好的融合 于整个空间,合二为一。沙发背景采用软包与木墙板的一个契合,在整体的感觉上有舒服和整体效果及档次的 提升。

