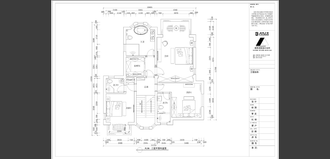
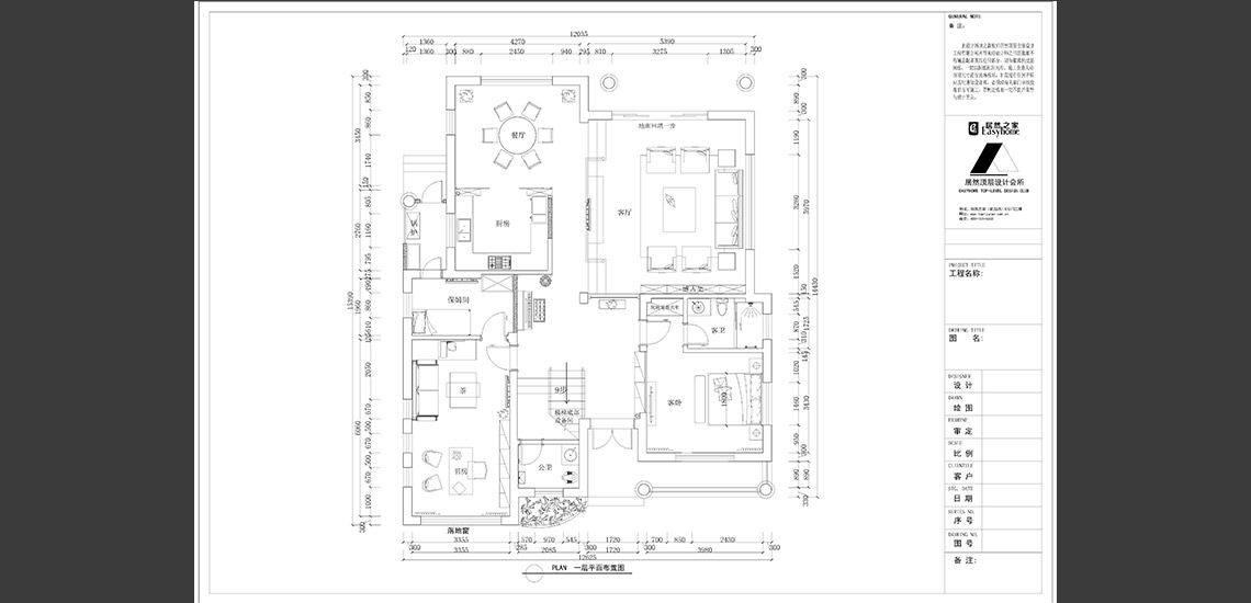
保利十二橡树



小区名称:保利十二橡树
装修风格:美式
装修户型:别墅
装修面积:320平米
设 计 师:余肖

设计概念:本案以中式家具为主,美式格调,整体色调明亮,柔和,背景色为墙面的白色,给人温馨舒适的感觉,主体色                     为地面的米黄色和墙面的白色,既温馨又静谧,点缀色通过黑白色块来调和空间的平衡



设计团队,武汉顶层全案设计工程有限公司,

设计团队-武汉顶层全案设计工程有限公司

设计团队,武汉顶层全案设计工程有限公司