春树里



小区名称:春树里
装修风格:中式
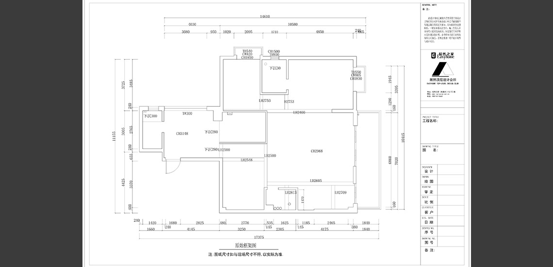
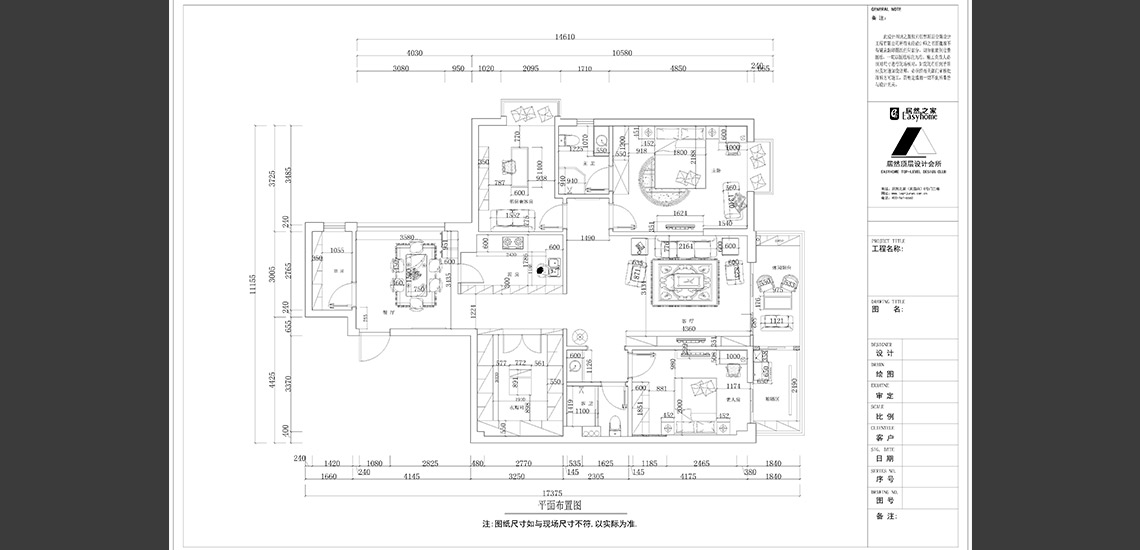
装修户型:平层
装修面积:120平米
设 计 师:余肖

设计概念:本案业主有着中式情愫,但不喜欢传统中式的繁重和沉闷。喜以中式家具为主,摒弃传统中式的设计繁重,在                     中式的元素上的概念意义上提取精炼。重组,整合,还原,设计,施工,一体话的米黄色和墙面的白色,既温                     馨又静谧,透露着书香和时尚的潮流理念,达到了一个新的设计还原平衡,打破了传统的设计,得到了客户的                     高度肯定。



设计团队,武汉顶层全案设计工程有限公司,

设计团队-武汉顶层全案设计工程有限公司

设计团队,武汉顶层全案设计工程有限公司