葛洲坝花园



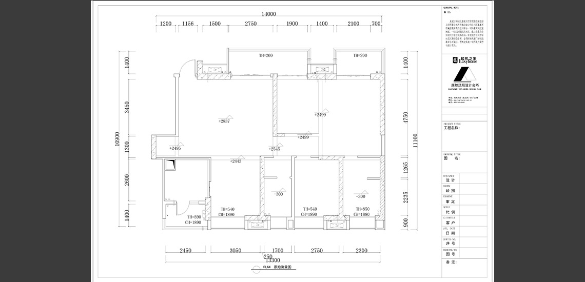
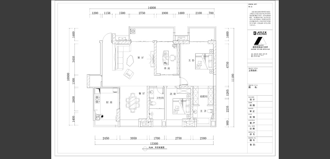
小区名称:葛洲坝花园
装修风格:现代
装修户型:平层
装修面积:140平米
设 计 师:余肖

设计概念:本案引入现代时尚的装饰元素,展现了户主优质生活及品位的追求。室内各功能空间相互交织,设计充满透视                    感。客饭厅的环回镜式装置,倍增室内空间和透视感;饭厅的特式水晶灯成了生活空间的亮点,在平面的玻璃                    灯罩与手造玻璃灯泡形成强烈的视觉和质感的对比。大门旁边的厨房装上了透明玻璃,营造了半开放式厨房之                    余丰富了空间感。

 



设计团队,武汉顶层全案设计工程有限公司,

设计团队-武汉顶层全案设计工程有限公司

设计团队,武汉顶层全案设计工程有限公司