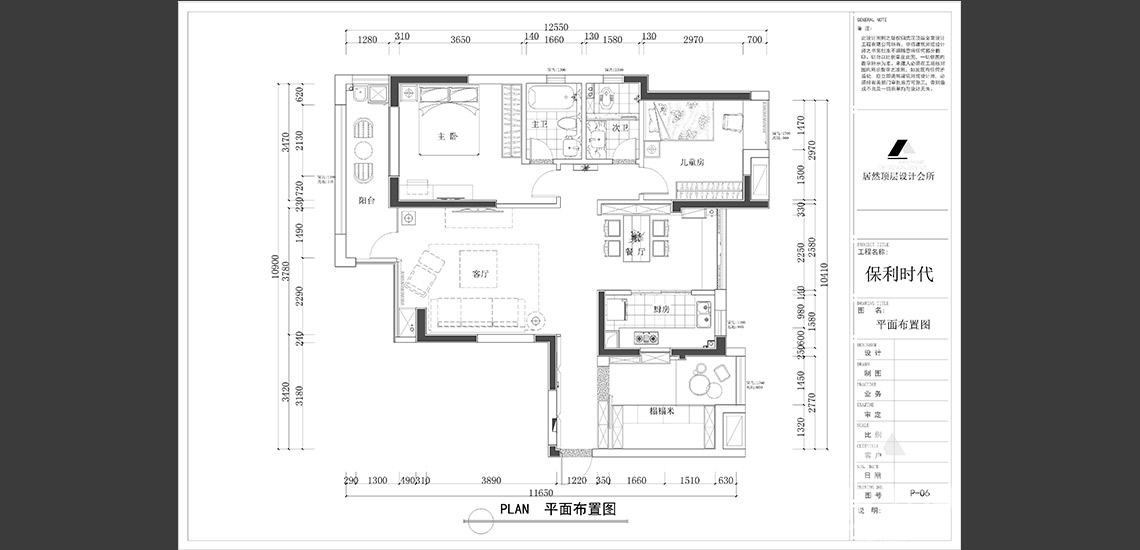
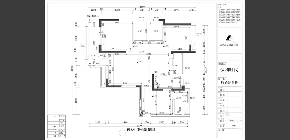
保利时代



小区名称:保利时代
装修风格:现代
装修户型:平层
装修面积:124平米
设 计 师:宋阳

设计说明:

    本案是一个现代风格案例,在空间的布局方面没有做太大的改动,在细节和功能使用上经过和业主的沟通后,在细节上做出了一些调整,使空间更为合理利用。格调方面,公共区域采用的以冷色调为主,使整个空间看上去稳重大气,而在卧室里面采用的以暖色为主,给人一种温馨的感觉。

 



设计团队,武汉顶层全案设计工程有限公司,

设计团队-武汉顶层全案设计工程有限公司

设计团队,武汉顶层全案设计工程有限公司