小区名称:复地东湖国际
装修风格:混搭风格
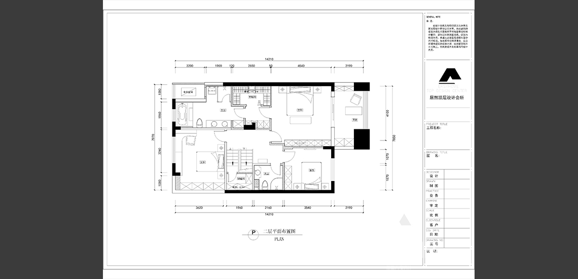
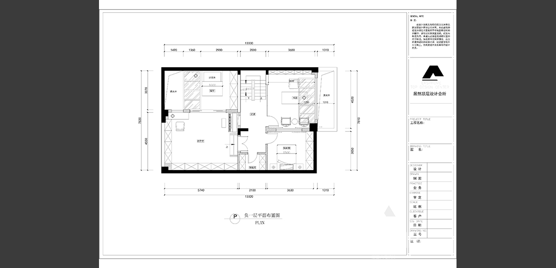
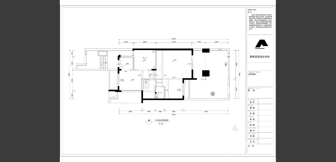
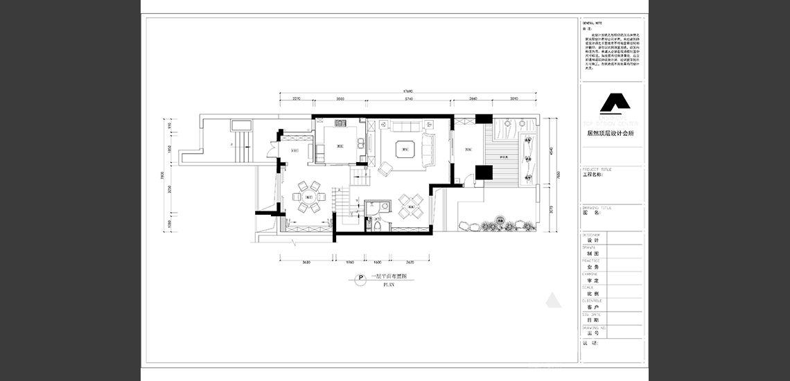
装修户型:别墅
装修面积:380平米
设 计 师: 李广明
复地东湖国际-380㎡-别墅-混搭风格
设计概念:第一次接触到业主张姐,我在复地一个别墅的施工现场跟师傅沟通施工,她和先生过来看了看。她说我们的现场不错,感觉我们做事认真。就这样,一个月后选择我来设计她家里的别墅。
张姐性格十分温和,先生比较儒雅。她主张家要简洁明亮,收纳空间要尽可能多。看起来没什么多余的东西,连客厅沙发区铺块地毯,似乎都是多余。色彩氛围希望达到一种低对比度的调和。希望有一点中式的元素,崇尚现代与直线条的造型轮廓,喜欢布艺与木质的质感。客厅的结构有向南面庭院延伸。

