华润橡树湾-95m²-全南平层-现代



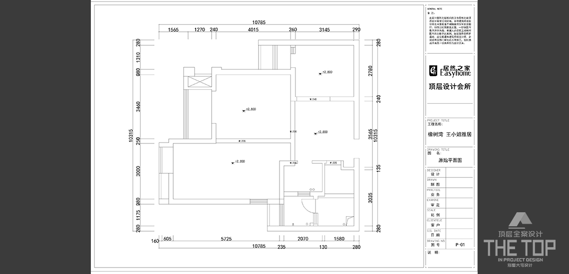
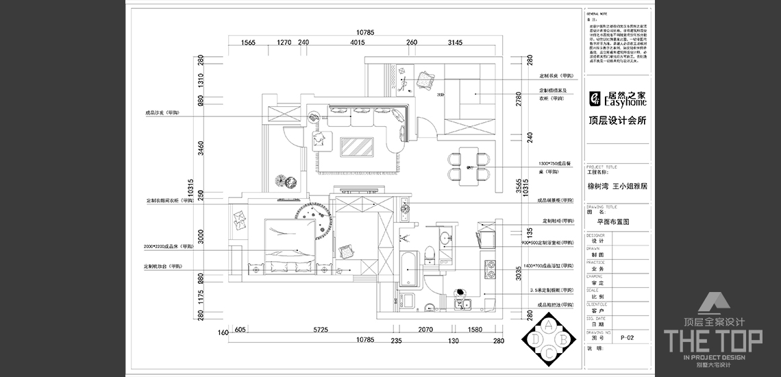
小区名称:华润橡树湾
装修风格:现代
装修户型:全南平层
装修面积:95平米
设 计 师: 涂威

设计说明:本案柔和的光源与室内色彩对比,把一个宁静,素雅,充满东方韵味的室内空间,彻底的呈现出来。环境风格上回归东方。这间住宅的风格属于日式,除了一间单独的次卧使用了榻榻米外,别的区域还是偏向现代化的。木线条、素色墙面与素色窗帘充满了日式元素。不求富丽堂皇,而以素雅自然为特色,喜用木修,不施油彩,欣赏自然质朴的情调与意趣。做工考究,精致细腻,专注于内部的处理。

 



设计团队,武汉顶层全案设计工程有限公司,

设计团队-武汉顶层全案设计工程有限公司

设计团队,武汉顶层全案设计工程有限公司